A third-year student pursuing a degree in Interior Architecture and Environmental Design. Equipped with a foundation in design principles, aesthetics, and space planning, I am interested in innovative and sustainable solutions for interior spaces.


Villa Harmonia
Villa Harmonia exudes a tranquil elegance, offering a sophisticated blend of modern design and luxurious amenities. Architectural brilliance meets serene natural beauty, creating a seamless indoor-outdoor experience.
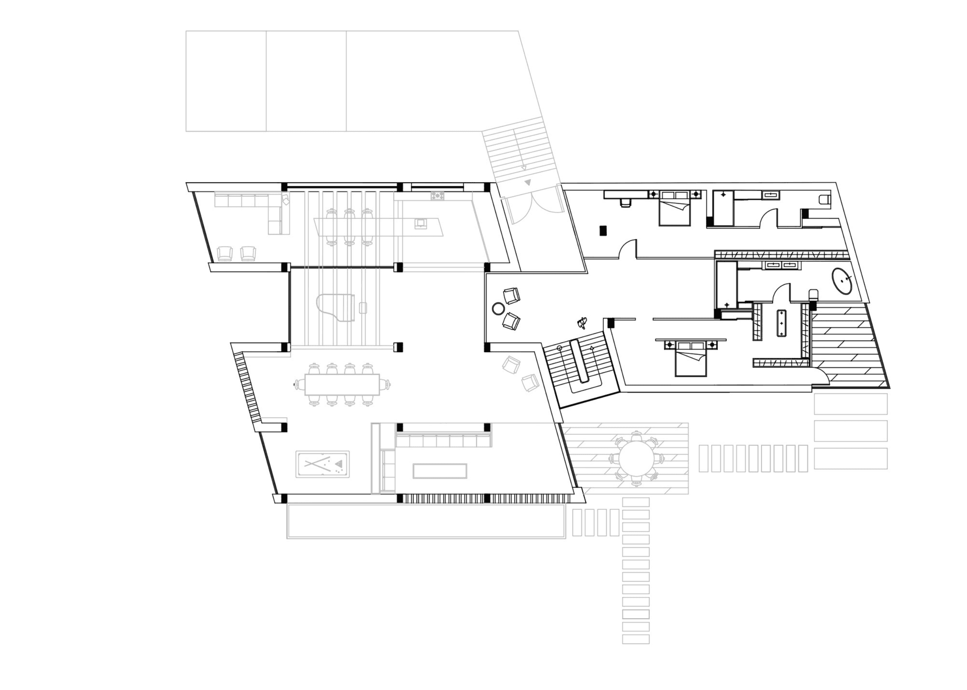
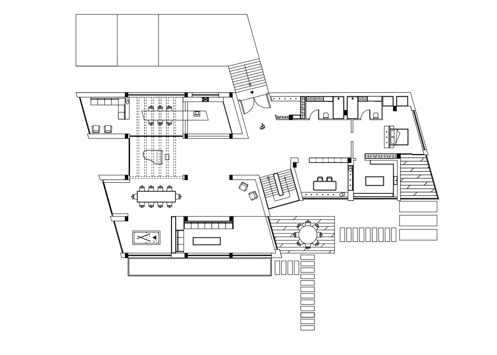
Crafting the floor plan is our foundational step, meticulously drafted in AutoCAD.
AutoCADSite Plan

1st Floor Plan

2nd Floor Plan

The tactile phase of architectural model making is an immersive step where designs transition from digital sketches to physical forms.
Balsa WoodAcrylicFoam BoardPaper

Progressing from AutoCAD's precise outlines, the rendering phase breathes life into our designs. Utilizing 3D Max, we transform technical sketches into vibrant, three-dimensional visuals.
Blender





In the final stretch, the project transitions into the realm of light and shadow, where Blender's robust capabilities illuminate our interior spaces. Final Renders done by: @deviant.phi
Blender




